01905 641 804
  • Facebook
  • Instagram
  • Facebook
  • Instagram
CDC Bespoke Properties
  • About Us
  • Our Current Developments
    • Current Developments
    • Fringe Green Close
    • Norton
  • Our Previous Developments
    • Residential
    • Commercial
  • Rental Properties
    • Rental Enquiries
    • Residential Lettings
    • Commercial Lettings
  • Land
  • Contact Us
Select Page

Norton

Images coming soon

Click here for Plot One Elevation

Click here for Plot Two Elevation

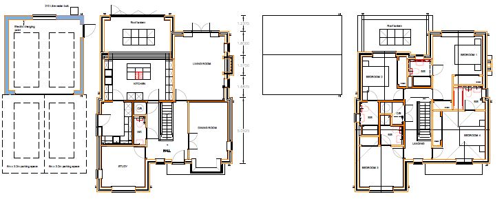
Click here for Plot One Floor Plans

Click here for Plot Two Floor Plans

  • Terms and Conditions

Copyright 2019 CDC Bespoke Properties | All Rights Reserved |Designed by Fresh Nous | Powered by Worcester I.T Services